В ЕДИНОМ СТИЛЕ
✔️ Статья о формировании усадьбы в едином стиле на узком длинном участке
✔️ На примере проектирования гостевого домика в стиле коттеджа КРОХА
✔️ Статья о формировании усадьбы в едином стиле на узком длинном участке
✔️ На примере проектирования гостевого домика в стиле коттеджа КРОХА
✔️ одноэтажный дом - самый удобный. Все только бы и строили одноэтажные дома, если бы не несколько «НО...»
✔️ Разберём все возможные «за» и «против» одноэтажного строительства.
✔️ Сравнение стоимости строительства 1- и 2-этажного дома в таблице.
✔️ какой дом выбрать для длинного участка, куда его поставить, как правильно зонировать территорию
✔️ сценарии и приёмы оформления узкого длинного участка
✔️ Вы выбрали проект в каталоге и собираетесь купить чертежи.
✔️ Что доработать в архитектуре, конструктиве и инженерии типового коттеджа, чтобы он идеально подошёл для Вашей семьи и участка.
✔️ Инструкция - 14 важных позиций оценки участка
✔️ Прочитайте это ДО покупки
✔️ Статья о возможностях и достоинствах свободной планировки без внутренних несущих стен
✔️ На примере небольшого мансардного коттеджа КАНТРИ из каталога ИНВАПОЛИС
✔️ Несколько советов, которые помогут наиболее удачно выбрать дом для строительства на участках различного размера и формы.
✔️ Подборка небольших домиков эконом-класса КОМФОРТ, КАНТРИ, КРОХА, ТИРОЛЬ, УЗКИЙ из каталога ИНВАПОЛИС
✔️ Узкие дома, несмотря на свои неудобные габариты, могут стать образцом эргономики и уюта, если грамотно подойти к планировке
✔️ Изучаем принципы реальной и визуальной адаптации плана неудобной формы
✔️ И действительно, зачем он нужен?! Все же люди понимают, как жить удобно и какой дом красивый....
✔️ Рассуждения и кейс: дилетантский и профессиональный проект большого дома с бассейном по одному техзаданию.
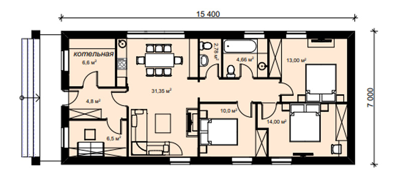
АНТУРИУМ узкий одноэтажный коттедж с габаритами 7х15.4 м подходит для строительства на узких участках, а тккже на длинных участках нормальной ширины.
Дом АНТУРИУМ уникален по вместимости - при ширине всего 7 м и площади всего 92 м2 - в нем разместились четыре спальни, что является редкостью для одноэтажных домов с такой шириной и площадью. Антуриум подойдет как для постоянного проживания семьи из 4 - 7 человек, так и для сезонного отдыха или сдачи в аренду.
Планировка узкого дома АНТУРИУМ продумана тщательно до мелочей. Несмотря на трудную для обустройства ширину дома - всего 7 м и вытянутую форму плана, каждый квадратный метр площади использован максимально эффективно.

Сразу при входе расположена прихожая, где предусмотрена вместительная гардеробная для верхней одежды и обуви. Рядом размещена котельная, а также небольшая, но полезная комната, которую можно обустроить по своему усмотрению – будь то уютная гостевая спальня для друзей и родственников или тихий кабинет для работы и творчества.
Сердце дома – просторная и светлая центральная часть, объединяющая кухню, столовую и гостиную. Кухонная зона, плавно переходящая в столовую, буквально залита естественным светом благодаря великолепному панорамному окну от пола до потолка. Здесь приятно готовить и собираться за обеденным столом. Гостиная же станет любимым местом для всей семьи: здесь установлен большой и комфортный угловой диван, идеальный для вечерних посиделок, просмотра фильмов на большом телевизоре, а уютный камин добавит тепла и атмосферы в холодные вечера.
В дальней, приватной части дома, расположены три спальни, каждая из которых оборудована собственной гардеробной зоной. Здесь же находится просторная ванная комната со стиральной машинкой, а ближе к входу предусмотрен гостевой туалет, что очень практично и для повседневной жизни и при приеме гостей.
Архитектура АНТУРИУМА гармонично сочетает респектабельность и скромность, элементы классики и современного минимализма.
Особенностью стиля являются изящная четырехскатная кровля, придающая дому завершенный и аккуратный вид. Высокие окна в английском стиле добавляют фасадам статусности и элегантности, наполняют интерьер естественным светом и создают ощущение простора.

Фасады дома выполнены с минималистичной детализацией, что делает стиль доступным и практичным. Невысокий цоколь дома облицован декоративным камнем. Стены отделаны клинкерной плиткой под кирпич или декоративной штукатуркой - эти материалы не только эстетичные, но и долговечные, обеспечивают дому ухоженный внешний вид на долгие годы.

Дом АНТУРИУМ не имеет загромождающих пространство внутренних несущих стен, это обеспечивает максимальную гибкость к адаптации планировки под любые требования будущего хозяина.
Кроме возможности изменения планировки, можно, при сохранности стиля увеличить или уменьшить габариты дома, количество и габариты помещений, общую площадь всех помещений или отдельных комнат.
Можно добавить к дому функциональные зоны, такие как навес для парковки автомобиля, гараж или садовую террасу с барбекю. Можно расположить входную зону не в передней части дома, а в центральной или тыльной.
План сконструирован таким образом, чтобы кухонно - гостиная зона была расположена не при входе в дом, как а базовом плане, а с тыльной стороны. В этом случае к дому можно добавить террасу и сделать удобный выход на нее из гостиной зоны.

В этом варианте коттеджа АНТУРИУМ предусматривается несколько удобных дополнений, которые делают дом ещё более комфортным и функциональным. При входе в дом добавлена автостоянка, а со стороны гостиной зоны - садовая терраса - отличное место для отдыха на свежем воздухе, семейных обедов и встреч с друзьями.
Кроме того, в этом варианте зона входа устроена так, что есть возможность войти не только с главного фасада, но и с боковой стороны дома. Такая планировка повышает удобство передвижения в зависимости от ситуации.

Проект узкого дома АНТУРИУМ - один из серии проектов узких одноэтажных коттеджей "ФЛОРА", имеющих ширину 7 м и разработанных специально для участков с ограниченной шириной. Все коттеджи коллекции выполнены в едином стиле и единым принципом планировки, но имеют различную длину и площадь в зависимости от количества спален.
Если площадь и габариты коттеджа АНТУРИУМ велики для семьи или, наоборот, маловаты, можно выбрать для строительства любой другой подходящий проект коттеджа серии ФЛОРА.
Планы некоторых проектов коттеджей серии можно посмотреть ниже.
• ГИАЦИНТ - проект одноэтажного узкого коттеджа шириной 7м, площадью 118.1 м2 и с 4-мя спальнями. Есть также проект коттеджа этой серии с такими же габаритами и общей площадью, но со входом с длинной стороны.
• ГЛАДИОЛУС - проект одноэтажного узкого коттеджа с шириной 7 м, с тремя спальнями и площадью 72.1 м2.

• ИБЕРИС - проект одноэтажного узкого коттеджа шириной 7 м, с тремя спальнями и площадью 67.5 м2.
• ЛОТОС - проект одноэтажного узкого коттеджа шириной 7м, с мини-банькой, спальней и площадью 60.0 м2.
Фундамент - монолитная лента до глубины промерзания (возможно изменение конструкции "по месту").
Стены - толщиной 375 мм, газобетон. Возможно утепление и замена материала стен.
Пол - бетонный по грунту.
Кровля - простая чердачная четырёхскатная.
О типовых конструкциях домов бренда ИНВАПОЛИС©, читайте на странице ПРОЕКТЫ ИЗ ПЕНОБЛОКОВ
• Обсудить проект узкого дома АНТУРИУМ с автором и другими людьми можно на нашем канале ДЗЕН в комментариях к публикации о доме
• Все проекты узких одноэтажных домов ИНВАПОЛИС здесь
Пример готового проекта дома здесь... Состав комплекта может отличаться от примера.
Цена готового (типового) комплекта чертежей - 41500 ₽
Проекты, стоимость которых помечена значком *, не разработаны. К ним есть либо концепция, либо только раздел АР. Разработка таких проектов на заказ - цена и срок договорные. На сайте указана дальнейшая стоимость, когда проект будет готов и переведен в азряд типовых.
Автор: Местер Ольга Израиловна

Телефон: +7-916-142-9295
Email: invapolis@yandex.ru
Если для принятия решения о приобретении проекта дома Вам необходимо более детальное его изучение, предлагаем до покупки воспользоваться следующими возможностями «примерки» проекта к своим обстоятельствам:
1. Заказать комплект ведомостей основных материалов дома для предварительной оценки стоимости строительства. Стоимость комплекта ведомостей 3000 р. В дальнейшем при приобретении проекта эта сумма учитывается в его стоимости, так как эти материалы – часть проекта.
2. Заказать поэтажные планы дома с внутренними размерами помещений для обдумывания расстановки мебели, в формате PDF. Стоимость планов - 3000-5000 р. один этаж (в зависимости от размера дома).
3. Заказать зеркальный вариант поэтажных планов дома с внутренними размерами помещений для обдумывания расстановки мебели, в формате PDF. Стоимость планов - от 3500 р. один этаж.
4. Заказать план с перепланировкой этажа дома под ваш запрос (перенос перегородок, внутренних дверей, окон при возможности), в формате PDF. Стоимость разработки планов - от 5000 р. один этаж.
Более сложные изменения тоже возможны, подробнее см. раздел сайта корректировки проектов.
5. Заказать план посадки (расположения) дома на участке (без учета рельефа), в формате PDF. Стоимость 1000 р. При наличии рельефа - от 6000 р.
1. Консультации по документации, разъяснения (только по принятым в проекте архитектурным и конструктивным решениям) предоставляются дистанционно по телефону, ватсап и электронной почте бесплатно. Оперативность - обычно в день обращения.
2. Для работы инженеров-смежников может быть предоставлен файл «комплект смежника» в формате DWG (автокад) - поэтажные планы, план кровли и один разрез, за отдельную плату.
Стоимость комплекта 8000 р. для одноэтажного дома, от 10000 р. для двухэтажного дома. Больший объём информации (полный проект и его части) в редактируемых форматах не предоставляются.
Общий прайс на готовые проекты домов и дополнительные работы здесь...
Информация о порядке приобретения, образец договора на покупку проекта здесь...
На нашем сайте - большой выбор авторских готовых проектов домов и коттеджей, с 3d визуализациями, планировками, фото и ценами.
Продажа типовой проектной документации онлайн, в офисе в Москве и доставка по РФ и СНГ.
• Одноэтажные
• С мансардой
• Двухэтажные в два полных этажа
• до 100 кв м
• до 150 кв м
• до 200 кв м
• Из газобетона и пеноблоков
• Деревянные из бревна и бруса
• Эконом-класс - недорогие коттеджи от 2 до 8 комнат
• Узкие длинные
• Альпийские шале
• Русская усадьба
Помощь архитектора с подбором дома по параметрам - бесплатно, по запросу.
Привязка плана дома к плану участка - по запросу.
Предоставление ведомости основных материалов строительства до покупки проекта для укрупненной оценки стоимости - платно, по запросу.
• Стоимость готовых проектов, цены на работы и услуги, акции и скидки
• Как оплатить и приобрести чертежи (онлайн, в офисе, доставка почтой и курьером)
• Типовой состав чертежей рабочей документации
• Корректировка и адаптация проектов.
Возможна доработка любого типового решения под Ваши условия под заказ:
- изменение планировок,
- изменение стиля фасадов,
- варианты типа конструкций,
- замена материала стен, перекрытий,
- проектирование фундаментов по результатам инженерных изысканий.
• Загородное жильё - жилые дома и коттеджи
• Реконструкции загородных жилых домов
• Ландшафт и план благоустройства
• Усадьбы и поместья
Индивидуальное проектирование может быть выполнено в необходимом вам объёме - от эскиза плана помещений дома до рабочего проекта «под ключ»
• Виртуальная прогулка
по офису компании (подборка фото)
• Статьи архитекторов компании
о проектировании, строительстве
и обустройстве малоэтажных домов
Обращаем Ваше внимание:
1. Каталог не содержит проектов:
- каркасного домостроения,
- домов из СИП-панелей,
- А-фреймов
- барнхаусов
- домокомплектов
2. Мы не строим дома под ключ.
Мы проектное бюро и занимаемся
исключительно проектами.
В Москве и области
можем рекомендовать партнеров.
3. Мы не предоставляем услугу
«скачать проект бесплатно».
Покупка проекта у автора –
гарантия получения консультаций
при строительстве дома.
