КАК ВЫБРАТЬ ГОТОВЫЙ ПРОЕКТ ДОМА
✔️ Как среди множества представленных на рынке готовых проектов выбрать свой единственный?
✔️ 11 позиций проверки качества проектных решений, и 7 признаков, что домик Вам подходит.
✔️ Как среди множества представленных на рынке готовых проектов выбрать свой единственный?
✔️ 11 позиций проверки качества проектных решений, и 7 признаков, что домик Вам подходит.
✔️ Вы выбрали проект в каталоге и собираетесь купить чертежи.
✔️ Что доработать в архитектуре, конструктиве и инженерии типового коттеджа, чтобы он идеально подошёл для Вашей семьи и участка.
✔️ Принципы комфорта и нормативная база расположения дома на участке.
✔️ 5 простых шагов до начала строительства для определения идеального места дома, построек и посадок
✔️ Какие чертежи должны быть в проекте дома, какую информацию на них смотреть, и как её понять
✔️ Разъяснение правил чтения рабочих чертежей разделов АР и КР (архитектурного и конструктвного)
✔️ Методика примерной самостоятельной оценки строительства дома по понравившемуся проекту
✔️ Используя этот способ, можно самому укрупненно прикинуть стоимость строительства любого дома за 15-20 минут.
Дом выполнен в стилистике классического английского загородного коттеджа. Композиция дома асимметричная, с выступающей вперед мансардой над террасой, эркером на боковом фасаде и двумя мансардными окошками на фасадах. Отделка дома - красный кирпич и белые декоративные детали у окон, дверей, кровли и колонн. Балки кровли на фронтонах оформлены резными подкосами.
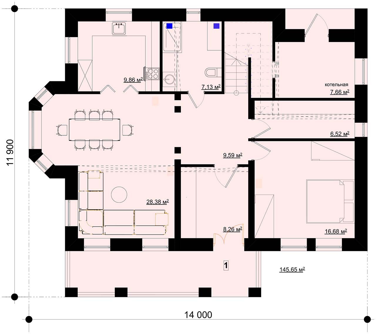
Дом рассчитан на проживание семьи из 3 - 6 человек. Левую часть первого этажа занимают помещения дневной зоны. Справа от холла - гостевая спальня, кладовая и котельная с отдельным входом.
На втором этаже - четыре жилых комнаты, просторная ванная и небольшой кабинет. Лестница двухмаршевая эргономичная. Главная спальня может быть дополнена кладовками под свесами кровли (серая заливка).
Фундаменты выбираются исходя из гидрогеологических условий на участке строительства.
Перекрытия - монолитные ж/б.
Наружные стены из поротерма-termo толщиной 440 мм с облицовкой кирпичом 80 мм, несущие колонны кирпичные.
Перегородки из поротерма толщиной 80 мм.
Кровля тёплая мансардная, вентилируемая, по деревянным балкам и стропилам. Покрытие кровли - мягкая черепица или металл (оцинкованная сталь, медь).
Проект английского коттеджа разработан в составе двух разделов - паспорт (эскизный проект) для утверждения и получения разрешения на строительство, и СКР (АР+КР) для строительства и контроля над подрядчиком.
Пример готового проекта дома здесь... Состав комплекта может отличаться от примера.
Цена готового (типового) комплекта чертежей - 65000 ₽
Проекты, стоимость которых помечена значком *, не разработаны. К ним есть либо концепция, либо только раздел АР. Разработка таких проектов на заказ - цена и срок договорные. На сайте указана дальнейшая стоимость, когда проект будет готов и переведен в азряд типовых.
Автор – БУТУСОВА Светлана Андреевна

Телефон: +7-916-627-8440
Email: invapolis@yandex.ru
Если для принятия решения о приобретении проекта дома Вам необходимо более детальное его изучение, предлагаем до покупки воспользоваться следующими возможностями «примерки» проекта к своим обстоятельствам:
1. Заказать комплект ведомостей основных материалов дома для предварительной оценки стоимости строительства. Стоимость комплекта ведомостей 3000 р. В дальнейшем при приобретении проекта эта сумма учитывается в его стоимости, так как эти материалы – часть проекта.
2. Заказать поэтажные планы дома с внутренними размерами помещений для обдумывания расстановки мебели, в формате PDF. Стоимость планов - 3000-6000 р. один этаж (в зависимости от размера дома).
3. Заказать зеркальный вариант поэтажных планов дома с внутренними размерами помещений для обдумывания расстановки мебели, в формате PDF. Стоимость планов - от 4000 р. один этаж.
4. Заказать план с перепланировкой этажа дома под ваш запрос (перенос перегородок, внутренних дверей, окон при возможности), в формате PDF. Стоимость разработки планов - от 5000 р. один этаж.
Более сложные изменения тоже возможны, подробнее см. раздел сайта корректировки проектов.
5. Заказать план посадки (расположения) дома на участке (без учета рельефа), в формате PDF. Стоимость 1000 р. При наличии рельефа - от 6000 р.
1. Консультации по документации, разъяснения (только по принятым в проекте архитектурным и конструктивным решениям) предоставляются дистанционно по телефону, ватсап и электронной почте бесплатно. Оперативность - обычно в день обращения.
2. Для работы инженеров-смежников может быть предоставлен файл «комплект смежника» в формате DWG (автокад) - поэтажные планы, план кровли и один разрез, за отдельную плату.
Стоимость комплекта 8000 р. для одноэтажного дома, от 10000 р. для двухэтажного дома. Больший объём информации (полный проект и его части) в редактируемых форматах не предоставляются.
Общий прайс на готовые проекты домов и дополнительные работы здесь...
Информация о порядке приобретения, образец договора на покупку проекта здесь...
Информация о порядке приобретения, образец договора на покупку проекта здесь...
Задать вопрос автору Вы можете также на нашем канале ДЗЕН
На нашем сайте - большой выбор авторских готовых проектов домов и коттеджей, с 3d визуализациями, планировками, фото и ценами.
Продажа типовой проектной документации онлайн, в офисе в Москве и доставка по РФ и СНГ.
• Одноэтажные
• С мансардой
• Двухэтажные в два полных этажа
• до 100 кв м
• до 150 кв м
• до 200 кв м
• Из газобетона и пеноблоков
• Деревянные из бревна и бруса
• Эконом-класс - недорогие коттеджи от 2 до 8 комнат
• Узкие длинные
• Альпийские шале
• Русская усадьба
Помощь архитектора с подбором дома по параметрам - бесплатно, по запросу.
Привязка плана дома к плану участка - по запросу.
Предоставление ведомости основных материалов строительства до покупки проекта для укрупненной оценки стоимости - платно, по запросу.
• Стоимость готовых проектов, цены на работы и услуги, акции и скидки
• Как оплатить и приобрести чертежи (онлайн, в офисе, доставка почтой и курьером)
• Типовой состав чертежей рабочей документации
• Корректировка и адаптация проектов.
Возможна доработка любого типового решения под Ваши условия под заказ:
- изменение планировок,
- изменение стиля фасадов,
- варианты типа конструкций,
- замена материала стен, перекрытий,
- проектирование фундаментов по результатам инженерных изысканий.
• Загородное жильё - жилые дома и коттеджи
• Реконструкции загородных жилых домов
• Ландшафт и план благоустройства
• Усадьбы и поместья
Индивидуальное проектирование может быть выполнено в необходимом вам объёме - от эскиза плана помещений дома до рабочего проекта «под ключ»
• Виртуальная прогулка
по офису компании (подборка фото)
• Статьи архитекторов компании
о проектировании, строительстве
и обустройстве малоэтажных домов
Обращаем Ваше внимание:
1. Каталог не содержит проектов:
- каркасного домостроения,
- домов из СИП-панелей,
- А-фреймов
- барнхаусов
- домокомплектов
2. Мы не строим дома под ключ.
Мы проектное бюро и занимаемся
исключительно проектами.
В Москве и области
можем рекомендовать партнеров.
3. Мы не предоставляем услугу
«скачать проект бесплатно».
Покупка проекта у автора –
гарантия получения консультаций
при строительстве дома.
