КАК ВЫБРАТЬ ГОТОВЫЙ ПРОЕКТ ДОМА
✔️ Как среди множества представленных на рынке готовых проектов выбрать свой единственный?
✔️ 11 позиций проверки качества проектных решений, и 7 признаков, что домик Вам подходит.
✔️ Как среди множества представленных на рынке готовых проектов выбрать свой единственный?
✔️ 11 позиций проверки качества проектных решений, и 7 признаков, что домик Вам подходит.
✔️ Вы выбрали проект в каталоге и собираетесь купить чертежи.
✔️ Что доработать в архитектуре, конструктиве и инженерии типового коттеджа, чтобы он идеально подошёл для Вашей семьи и участка.
✔️ Какие чертежи должны быть в проекте дома, какую информацию на них смотреть, и как её понять
✔️ Разъяснение правил чтения рабочих чертежей разделов АР и КР (архитектурного и конструктвного)
✔️ Плюсы и минусы совмещенной и изолированной кухни.
✔️ Когда подходит каждое из решений, и как создать функциональное пространство. Примеры планировок и рекомендации экспертов по выбору проекта дома.
✔️ Статья о возможностях и достоинствах свободной планировки без внутренних несущих стен
✔️ На примере небольшого мансардного коттеджа КАНТРИ из каталога ИНВАПОЛИС
• О достоинствах одноэтажного загородного жилья.
• Обзор пяти популярных одноэтажных коттеджей ИНВАПОЛИС в классическом стиле
✔️ Одноэтажные дома с мастер-спальней: советы по обустройству, ошибки, подборка из 20 проектов домов
✔️ Практическое руководство по проектам одноэтажных домов с мастер-спальней, примеры и подборка домов. Узнайте о популярных планировках, типичных ошибках, оптимальных размерах комнат и правилах расстановки мебели
✔️ Принципы удобного расположения гаража, рассуждения о способе интеграции гаража в планировку жилого дома
✔️ Три основных типа планировок домов с гаражом
✔️ Обзор нескольких планировок и подборка проектов домов с гаражом
✔️ Как избежать непредвиденных затрат, заметив в проекте факторы, удорожающие строительство.
✔️ 7 позиций оценки рациональности дома перед покупкой готового проекта из каталога.
✔️ Что, кроме размера, может сделать дом дорогим.
✔️ Методика примерной самостоятельной оценки строительства дома по понравившемуся проекту
✔️ Используя этот способ, можно самому укрупненно прикинуть стоимость строительства любого дома за 15-20 минут.
Дом в классическом средиземноморском стиле, в современной трактовке. В отделке совмещены камень (цоколь), штукатурка, и стилизованные ордерные детали.
• Обсудить этот проект с автором и другими людьми можно на нашем канале ДЗЕН в комментариях к публикации о доме
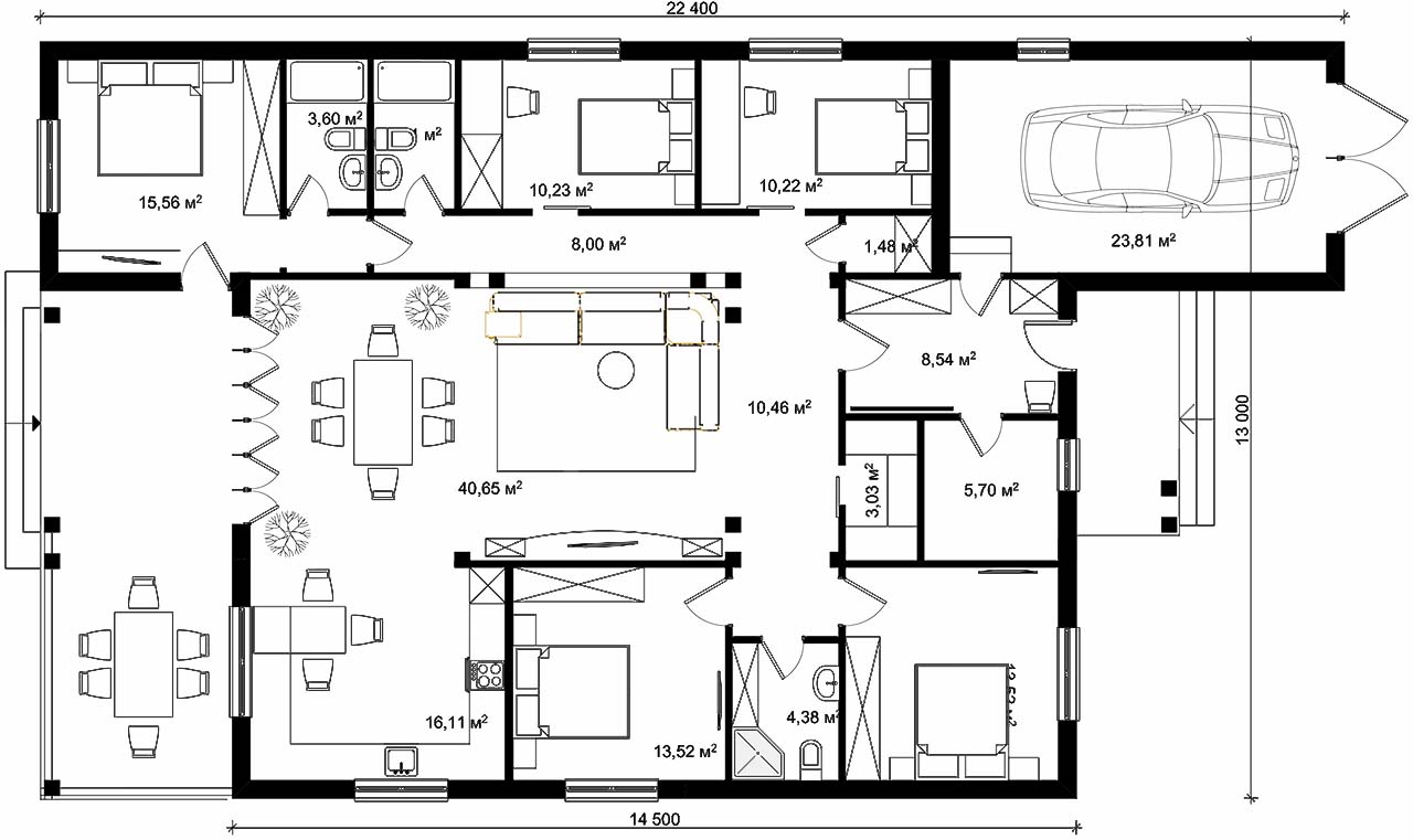
Елабуга - один из самых больших наших одноэтажных домов, выполненных на базе трёхчастного симметричного плана, когда середина дома отдана общим комнатам, слева и справа от которых располагаются группы спален или дополнительных помещений.
✔️ Всю подборку проектов с такой схемой плана можно посмотреть в подборке АДРИАТИКА. Там дома с площадью помещений от 60 до 200 м2.
✔️ В типовом варианте проекта, справа от входа - три спальни, одна (главная) - со своим санузлом и выходом на террасу. Слева - две детских или гостевых комнаты с общей душевой и кухня с большой кладовой.
Дом удобен для ведения хозяйства - есть две кладовые, котельная и гараж.
Планировка дома, несмотря на компактность и отсутствие коридоров, обеспечивает правильное функциональное зонирование помещений и комфортное безконфликтное пребывание всех жильцов.
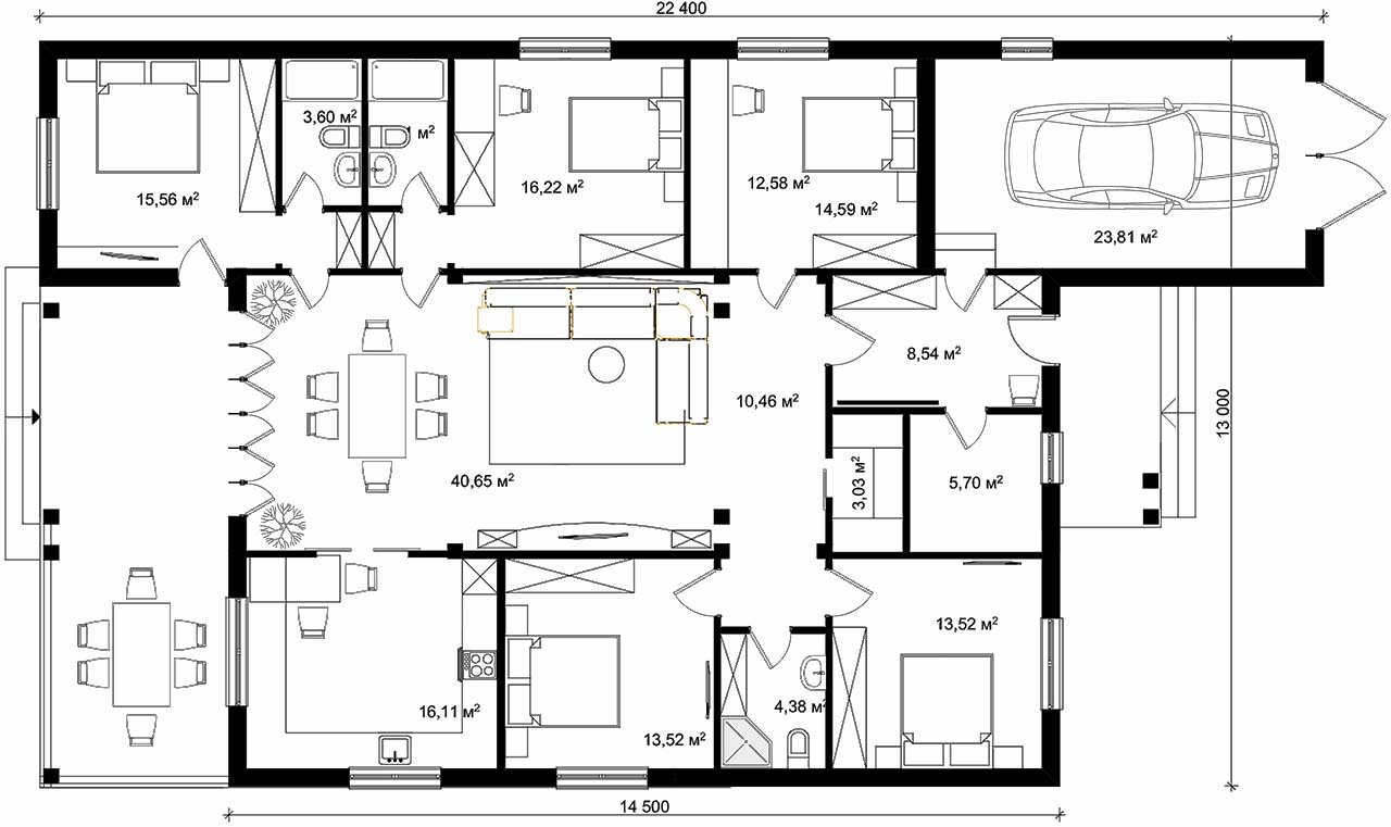
В доме нет несущих стен, что обеспечивает возможность создания множества альтернативных планировок проекта. Конструктив позволяет менять положение перегородок, а также размер и положение оконных проёмов.
Для примера приводим несколько возможных вариантов плана дома.
✔️ Вариант 1. Похож на базовый, но вход в мастер-спальню перенесён в коридорчик, вход в комнату так более изолирован. А коридорчик не отделён перегородкой от гостиной. Вместо стенки - этажерки с книгами и декором, это визуально ещё больше расширяет гостиную. Кухня выполнена без кладовки, просто одно большое помещение.
✔️ Вариант 2. Здесь совсем убрали коридорчик за гостиной. Спальни стали больше, но вход в две из них сделан из общей комнаты. В данном случае это не критично, приватность не нарушена, так как у каждой из этих спален собственный санузел.
✔️ Вариант 3. Перенесли котельную к гаражу (также там можно хранить что-то хозяйственное), её место занял кабинет с входом из прихожей. Очень удобно для тех, у кого частная практика или просто надомная работа - можно принимать посетителей, не приглашая их в частное пространство. Мастер-спальня получила большую светлую гардеробную.
✔️ Вариант 4. Придумали его для тех, кто считает удобной кухню при входе в дом. Теперь одно крыло занимает мастер-спальня и кухня, а другое - три спальни. Эта схема очень удобна для семьи с тремя или более детьми. Кабинет при входе также можно предоставить детям под уроки или занятия с репетитором. Гостиную и коридор спален можно разделить перегородкой или просто шкафами. Котельная при гараже.
Фундаменты дома выбираются в соответствии с типом грунта и климатом.
Наружные стены из газосиликатных D400-D500 блоков, несущие колонны кирпичные 250х250 мм. Перегородки из пазогребневых плит или гипсокартона толщиной 80 мм.
Чердачное перекрытие тёплое деревянное. Чердак холодный.
Кровля четырехскатная с фронтонами над выходами, спереди и сзади, по деревянным балкам и стропилам.
Документация разработана для типового варианта плана, в составе двух разделов:
- паспорт (эскизный проект)
- Строительно- конструктивный раздел (АР+КР)
Пример готового проекта дома здесь... Состав комплекта может отличаться от примера.
Цена готового (типового) комплекта чертежей - 55 500 ₽
Проекты, стоимость которых помечена значком *, не разработаны. К ним есть либо концепция, либо только раздел АР. Разработка таких проектов на заказ - цена и срок договорные. На сайте указана дальнейшая стоимость, когда проект будет готов и переведен в азряд типовых.
Автор – БУТУСОВА Светлана Андреевна

Телефон: +7-916-627-8440
WhatsApp: +7-916-627-84-40
Email: invapolis@yandex.ru
Если для принятия решения о приобретении проекта дома Вам необходимо более детальное его изучение, предлагаем до покупки воспользоваться следующими возможностями «примерки» проекта к своим обстоятельствам:
1. Заказать комплект ведомостей основных материалов дома для предварительной оценки стоимости строительства. Стоимость комплекта ведомостей 3000 р. В дальнейшем при приобретении проекта эта сумма учитывается в его стоимости, так как эти материалы – часть проекта.
2. Заказать поэтажные планы дома с внутренними размерами помещений для обдумывания расстановки мебели, в формате PDF. Стоимость планов - 3000-5000 р. один этаж (в зависимости от размера дома).
3. Заказать зеркальный вариант поэтажных планов дома с внутренними размерами помещений для обдумывания расстановки мебели, в формате PDF. Стоимость планов - от 3500 р. один этаж.
4. Заказать план с перепланировкой этажа дома под ваш запрос (перенос перегородок, внутренних дверей, окон при возможности), в формате PDF. Стоимость разработки планов - от 5000 р. один этаж.
Более сложные изменения тоже возможны, подробнее см. раздел сайта корректировки проектов.
5. Заказать план посадки (расположения) дома на участке (без учета рельефа), в формате PDF. Стоимость 1000 р. При наличии рельефа - от 6000 р.
1. Консультации по документации, разъяснения (только по принятым в проекте архитектурным и конструктивным решениям) предоставляются дистанционно по телефону, ватсап и электронной почте бесплатно. Оперативность - обычно в день обращения.
2. Для работы инженеров-смежников может быть предоставлен файл «комплект смежника» в формате DWG (автокад) - поэтажные планы, план кровли и один разрез, за отдельную плату.
Стоимость комплекта 8000 р. для одноэтажного дома, от 10000 р. для двухэтажного дома. Больший объём информации (полный проект и его части) в редактируемых форматах не предоставляются.
Общий прайс на готовые проекты домов и дополнительные работы здесь...
Информация о порядке приобретения, образец договора на покупку проекта здесь...
Информация о порядке приобретения, образец договора на покупку проекта здесь...
Задать вопрос автору Вы можете также на нашем канале ДЗЕН
На нашем сайте - большой выбор авторских готовых проектов домов и коттеджей, с 3d визуализациями, планировками, фото и ценами.
Продажа типовой проектной документации онлайн, в офисе в Москве и доставка по РФ и СНГ.
• Одноэтажные
• С мансардой
• Двухэтажные в два полных этажа
• до 100 кв м
• до 150 кв м
• до 200 кв м
• Из газобетона и пеноблоков
• Деревянные из бревна и бруса
• Эконом-класс - недорогие коттеджи от 2 до 8 комнат
• Узкие длинные
• Альпийские шале
• Русская усадьба
Помощь архитектора с подбором дома по параметрам - бесплатно, по запросу.
Привязка плана дома к плану участка - по запросу.
Предоставление ведомости основных материалов строительства до покупки проекта для укрупненной оценки стоимости - платно, по запросу.
• Стоимость готовых проектов, цены на работы и услуги, акции и скидки
• Как оплатить и приобрести чертежи (онлайн, в офисе, доставка почтой и курьером)
• Типовой состав чертежей рабочей документации
• Корректировка и адаптация проектов.
Возможна доработка любого типового решения под Ваши условия под заказ:
- изменение планировок,
- изменение стиля фасадов,
- варианты типа конструкций,
- замена материала стен, перекрытий,
- проектирование фундаментов по результатам инженерных изысканий.
• Загородное жильё - жилые дома и коттеджи
• Реконструкции загородных жилых домов
• Ландшафт и план благоустройства
• Усадьбы и поместья
Индивидуальное проектирование может быть выполнено в необходимом вам объёме - от эскиза плана помещений дома до рабочего проекта «под ключ»
• Виртуальная прогулка
по офису компании (подборка фото)
• Статьи архитекторов компании
о проектировании, строительстве
и обустройстве малоэтажных домов
Обращаем Ваше внимание:
1. Каталог не содержит проектов:
- каркасного домостроения,
- домов из СИП-панелей,
- А-фреймов
- барнхаусов
- домокомплектов
2. Мы не строим дома под ключ.
Мы проектное бюро и занимаемся
исключительно проектами.
В Москве и области
можем рекомендовать партнеров.
3. Мы не предоставляем услугу
«скачать проект бесплатно».
Покупка проекта у автора –
гарантия получения консультаций
при строительстве дома.
