КАК ВЫБРАТЬ ГОТОВЫЙ ПРОЕКТ ДОМА
✔️ Как среди множества представленных на рынке готовых проектов выбрать свой единственный?
✔️ 11 позиций проверки качества проектных решений, и 7 признаков, что домик Вам подходит.
✔️ Как среди множества представленных на рынке готовых проектов выбрать свой единственный?
✔️ 11 позиций проверки качества проектных решений, и 7 признаков, что домик Вам подходит.
✔️ Вы выбрали проект в каталоге и собираетесь купить чертежи.
✔️ Что доработать в архитектуре, конструктиве и инженерии типового коттеджа, чтобы он идеально подошёл для Вашей семьи и участка.
✔️ Какие чертежи должны быть в проекте дома, какую информацию на них смотреть, и как её понять
✔️ Разъяснение правил чтения рабочих чертежей разделов АР и КР (архитектурного и конструктвного)
✔️ Статья о возможностях и достоинствах свободной планировки без внутренних несущих стен
✔️ На примере небольшого мансардного коттеджа КАНТРИ из каталога ИНВАПОЛИС
• О достоинствах одноэтажного загородного жилья.
• Обзор пяти популярных одноэтажных коттеджей ИНВАПОЛИС в классическом стиле
✔️ Варианты планировок и подборка готовых проектов одноэтажных домов с 3 спальнями
✔️ Рассматриваем дома от 50 до 180 метров с тремя комнатами
✔️ Подборка проектов одноэтажных домов ИНВАПОЛИС с тремя спальнями и террасой сзади
✔️ Рассматриваем планировки проектов от 60 до 120 метров для строительства у переднего края участка
✔️ Как определить состав помещений будущего коттеджа и их оптимальный размер
✔️ Правила подсчёта площадей и нормы эргономики комнат
• Обсудить этот проект с автором и другими людьми можно на нашем канале ДЗЕН в комментариях к публикации о доме
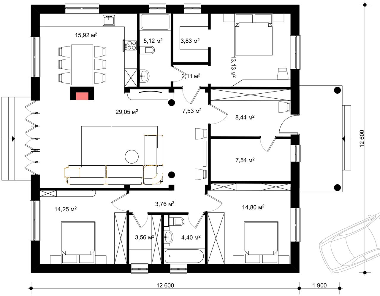
Дом рассчитан на проживание семьи из 4-6 человек. Композиция плана - симметричная. Середину дома занимают входная группа с котельной, холл и гостиная с выходом в сад. Кухня-столовая от гостиной отделена камином.
✔️ Типовая планировка предполагает устройство трёх спален - основной, справа от входа, дополненной гардеробной и душевой; и двух детских с санузлом и кладовкой. Планировка дома, несмотря на компактность и отсутствие коридоров, обеспечивает правильное функциональное зонирование помещений и комфортное безконфликтное пребывание всех жильцов.
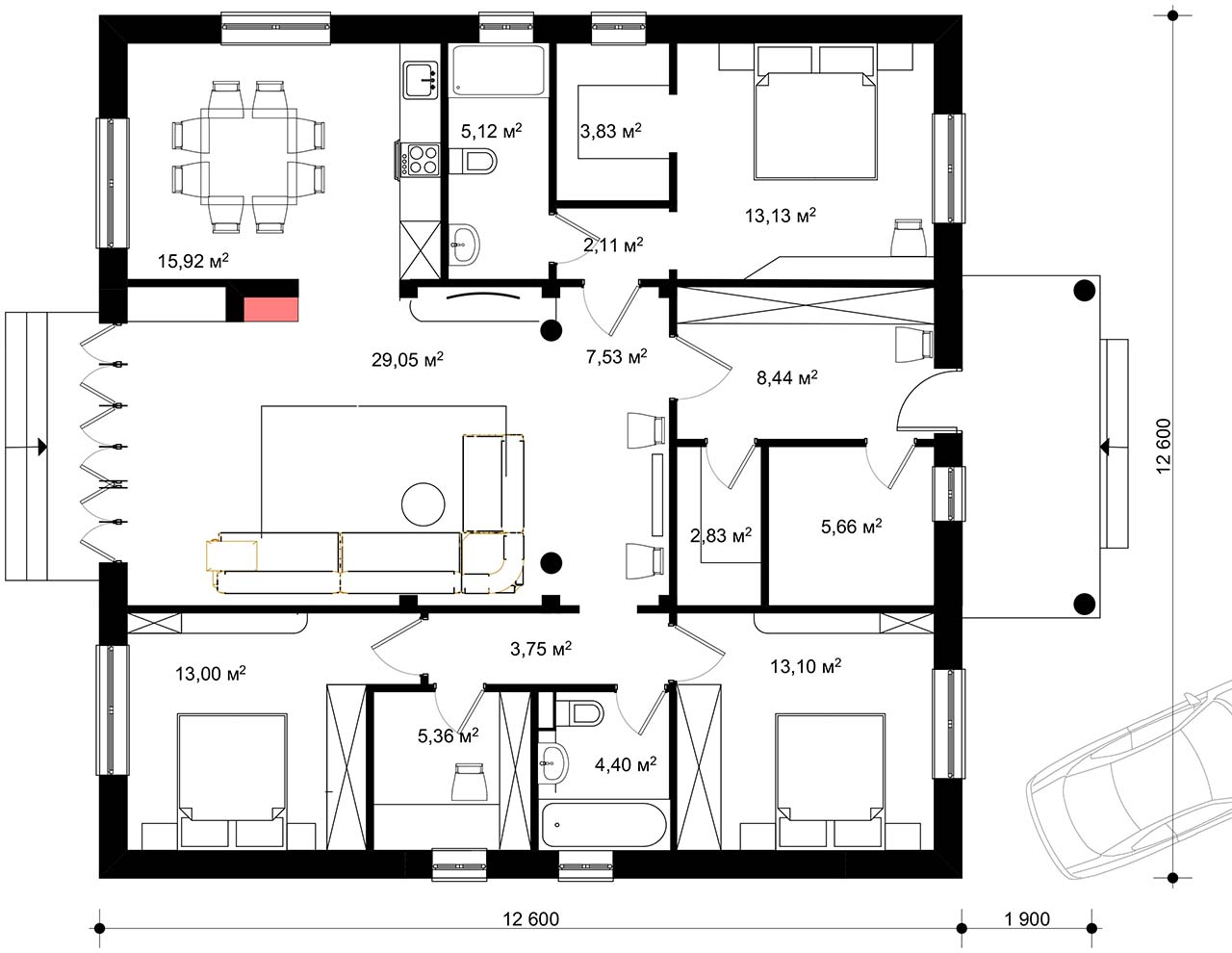
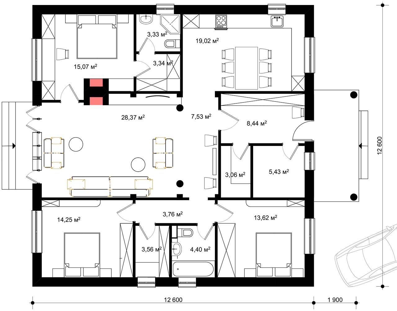
Дом запроектирован без внутренних несущих стен, поэтому планировка может быть изменена.
✔️ Например, можно уменьшить котельную, образовав дополнительную кладовую, варьировать размеры детских, уменьшив или, наоборот, увеличив санузел и кладовую между ними, сделать кухню более закрытой. Вместо кладовой также можно сделать небольшой кабинет.
✔️ Также, для любителей изолированной кухни при входе в дом, возможен вариант поменять местами кухню-столовую и мастер-спальню. При этом вход в спальню можно устроить как из гостиной, так и и столовой. В этом варианте возможно устройство камина не только в гостиной, но и с обратной стороны в спальне.
Фундаменты монолитные ленточные до глубины промерзания грунта.
Перекрытие - пустотные плиты.
Наружные стены из газоблока D 400 толщиной 400 мм, несущие колонны кирпичные 250х250 мм.
Перегородки из пазогребневых плит или гипсокартона толщиной 80 мм.
Чердачное перекрытие тёплое деревянное.
Кровля четырехскатная с фронтонами над выходами, спереди и сзади, по деревянным балкам и стропилам. Чердак холодный.
Проект содержит два раздела чертежей - паспорт (эскизный проект) для согласования в инстанциях, и строительно – конструктивный раздел (рабочая документация)
Пример готового проекта дома здесь... Состав комплекта может отличаться от примера.
Цена готового (типового) комплекта чертежей - 46600 ₽
Проекты, стоимость которых помечена значком *, не разработаны. К ним есть либо концепция, либо только раздел АР. Разработка таких проектов на заказ - цена и срок договорные. На сайте указана дальнейшая стоимость, когда проект будет готов и переведен в азряд типовых.
Автор – БУТУСОВА Светлана Андреевна

Телефон: +7-916-627-8440
WhatsApp: +7-916-627-84-40
Email: invapolis@yandex.ru
Если для принятия решения о приобретении проекта дома Вам необходимо более детальное его изучение, предлагаем до покупки воспользоваться следующими возможностями «примерки» проекта к своим обстоятельствам:
1. Заказать комплект ведомостей основных материалов дома для предварительной оценки стоимости строительства. Стоимость комплекта ведомостей 3000 р. В дальнейшем при приобретении проекта эта сумма учитывается в его стоимости, так как эти материалы – часть проекта.
2. Заказать поэтажные планы дома с внутренними размерами помещений для обдумывания расстановки мебели, в формате PDF. Стоимость планов - 3000-5000 р. один этаж (в зависимости от размера дома).
3. Заказать зеркальный вариант поэтажных планов дома с внутренними размерами помещений для обдумывания расстановки мебели, в формате PDF. Стоимость планов - от 3500 р. один этаж.
4. Заказать план с перепланировкой этажа дома под ваш запрос (перенос перегородок, внутренних дверей, окон при возможности), в формате PDF. Стоимость разработки планов - от 5000 р. один этаж.
Более сложные изменения тоже возможны, подробнее см. раздел сайта корректировки проектов.
5. Заказать план посадки (расположения) дома на участке (без учета рельефа), в формате PDF. Стоимость 1000 р. При наличии рельефа - от 6000 р.
1. Консультации по документации, разъяснения (только по принятым в проекте архитектурным и конструктивным решениям) предоставляются дистанционно по телефону, ватсап и электронной почте бесплатно. Оперативность - обычно в день обращения.
2. Для работы инженеров-смежников может быть предоставлен файл «комплект смежника» в формате DWG (автокад) - поэтажные планы, план кровли и один разрез, за отдельную плату.
Стоимость комплекта 8000 р. для одноэтажного дома, от 10000 р. для двухэтажного дома. Больший объём информации (полный проект и его части) в редактируемых форматах не предоставляются.
Общий прайс на готовые проекты домов и дополнительные работы здесь...
Информация о порядке приобретения, образец договора на покупку проекта здесь...
Информация о порядке приобретения, образец договора на покупку проекта здесь...
Задать вопрос автору Вы можете также на нашем канале ДЗЕН
На нашем сайте - большой выбор авторских готовых проектов домов и коттеджей, с 3d визуализациями, планировками, фото и ценами.
Продажа типовой проектной документации онлайн, в офисе в Москве и доставка по РФ и СНГ.
• Одноэтажные
• С мансардой
• Двухэтажные в два полных этажа
• до 100 кв м
• до 150 кв м
• до 200 кв м
• Из газобетона и пеноблоков
• Деревянные из бревна и бруса
• Эконом-класс - недорогие коттеджи от 2 до 8 комнат
• Узкие длинные
• Альпийские шале
• Русская усадьба
Помощь архитектора с подбором дома по параметрам - бесплатно, по запросу.
Привязка плана дома к плану участка - по запросу.
Предоставление ведомости основных материалов строительства до покупки проекта для укрупненной оценки стоимости - платно, по запросу.
• Стоимость готовых проектов, цены на работы и услуги, акции и скидки
• Как оплатить и приобрести чертежи (онлайн, в офисе, доставка почтой и курьером)
• Типовой состав чертежей рабочей документации
• Корректировка и адаптация проектов.
Возможна доработка любого типового решения под Ваши условия под заказ:
- изменение планировок,
- изменение стиля фасадов,
- варианты типа конструкций,
- замена материала стен, перекрытий,
- проектирование фундаментов по результатам инженерных изысканий.
• Загородное жильё - жилые дома и коттеджи
• Реконструкции загородных жилых домов
• Ландшафт и план благоустройства
• Усадьбы и поместья
Индивидуальное проектирование может быть выполнено в необходимом вам объёме - от эскиза плана помещений дома до рабочего проекта «под ключ»
• Виртуальная прогулка
по офису компании (подборка фото)
• Статьи архитекторов компании
о проектировании, строительстве
и обустройстве малоэтажных домов
Обращаем Ваше внимание:
1. Каталог не содержит проектов:
- каркасного домостроения,
- домов из СИП-панелей,
- А-фреймов
- барнхаусов
- домокомплектов
2. Мы не строим дома под ключ.
Мы проектное бюро и занимаемся
исключительно проектами.
В Москве и области
можем рекомендовать партнеров.
3. Мы не предоставляем услугу
«скачать проект бесплатно».
Покупка проекта у автора –
гарантия получения консультаций
при строительстве дома.

Вопросы и ответы
Все вопросы
Home колонны
10.04.2021 06:13Поясните пожалуйста какой диаметр у круглых колонн, реально ли их изготовление. Из чего они изготавливаются? Это дорого??
Отвечает АРХИТЕКТОР
12.03.2025 17:19В проекте все колонны - несущие, железобетонные, изготавливаются при помощи снимаемой или неснимаемой ...
Подробнее...
В проекте все колонны - несущие, железобетонные, изготавливаются при помощи снимаемой или неснимаемой опалубки.
Таких опалубок сейчас много, можно выбрать, что вам более удобно.
1. Картонная опалубка - стоит около 1000 рублей за 1 погонный метр. Она одноразовая
2. Пластиковая опалубка (съёмная) - стоит примерно 5-7 тысяч за 1 единицу. Такую опалубку часто берут в аренду и после использования возвращают. Тогда это вообще дёшево.
Диаметр колонн в доме 300 - 400 мм.
Далее на готовые ж/б колонны уже можно сделать декоративные накладки: сверху капитель, снизу базу. На них можно купить готовые накладные капители и базы нужным с внутренним диаметром. Они есть в продаже.
Так что изготовление круглых колонн представляет не большую проблему, чем прямоугольных.